Diagram Database

Posted by on 2020-12-30

Save Manual Audi A3 Current Flow Diagram

CETNIEWO2017.VILOGDANSK.EU

Save Manual Audi A3 Current Flow Diagram

  • Flow Diagram
  • Date : December 30, 2020
  • Downloaded : 5896 times

Save Manual Audi A3 Current Flow Diagram Whats New

Manual Audi A3 Current

Downloads Save Manual Audi A3 Current Flow Diagram

  • Haldex Gen 5

  • Audi A3 2000 8l 1 G Atw Engine Vacuum Diagram Workshop

  • J519 Audi A3 Wiring Diagram

  • Pin Out Wiring Diagram Rear Led Cluster

  • Wiring Diagrams Component Lookup

  • Wiring Diagrams Component Lookup

  • J519 Audi A3 Wiring Diagram

  • Pin Out Wiring Diagram Rear Led Cluster

  • Facelift

  • Wiring Diagrams Component Lookup

  • Pin Out Wiring Diagram Rear Led Cluster

  • Tail Light Cluster Wiring Diagram

  • J519 Audi A3 Wiring Diagram

  • Audi Workshop Manuals U0026gt A3 Mk1 U0026gt Power Unit U0026gt Motronic

  • J519 Audi A3 Wiring Diagram

  • Wiring Diagrams Component Lookup

  • Volkswagen Elsa 3 9 Repair Manual Order U0026 Download

  • J519 Audi A3 Wiring Diagram

  • Audi Workshop Manuals U0026gt A3 Mk2 U0026gt Power Unit U0026gt 4

  • Mk3 2014 Head Unit Change - Seat Cupra Net

  • Retrofitted Ads Buttons

  • Wiring Diagrams Audi 1 6l Diesel Engine Cayc U2014 U041f U043e U0440 U0442 U0430 U043b

  • Wiring Diagrams Audi 2 0 L U2014 Fuel Injection Engine 110 Kw

  • Starting Problems S2

  • Vwvortex Com

  • Audi A4 B5 Wiring Diagram

  • Audi Workshop Manuals U0026gt A4 Sedan L4

  • Retrofit Rain Light Sensor 14 Passat Problem

  • Audi A4 B5 Wiring Diagram

  • Audi Workshop Manuals U0026gt A2 U0026gt Heating Ventilation Air

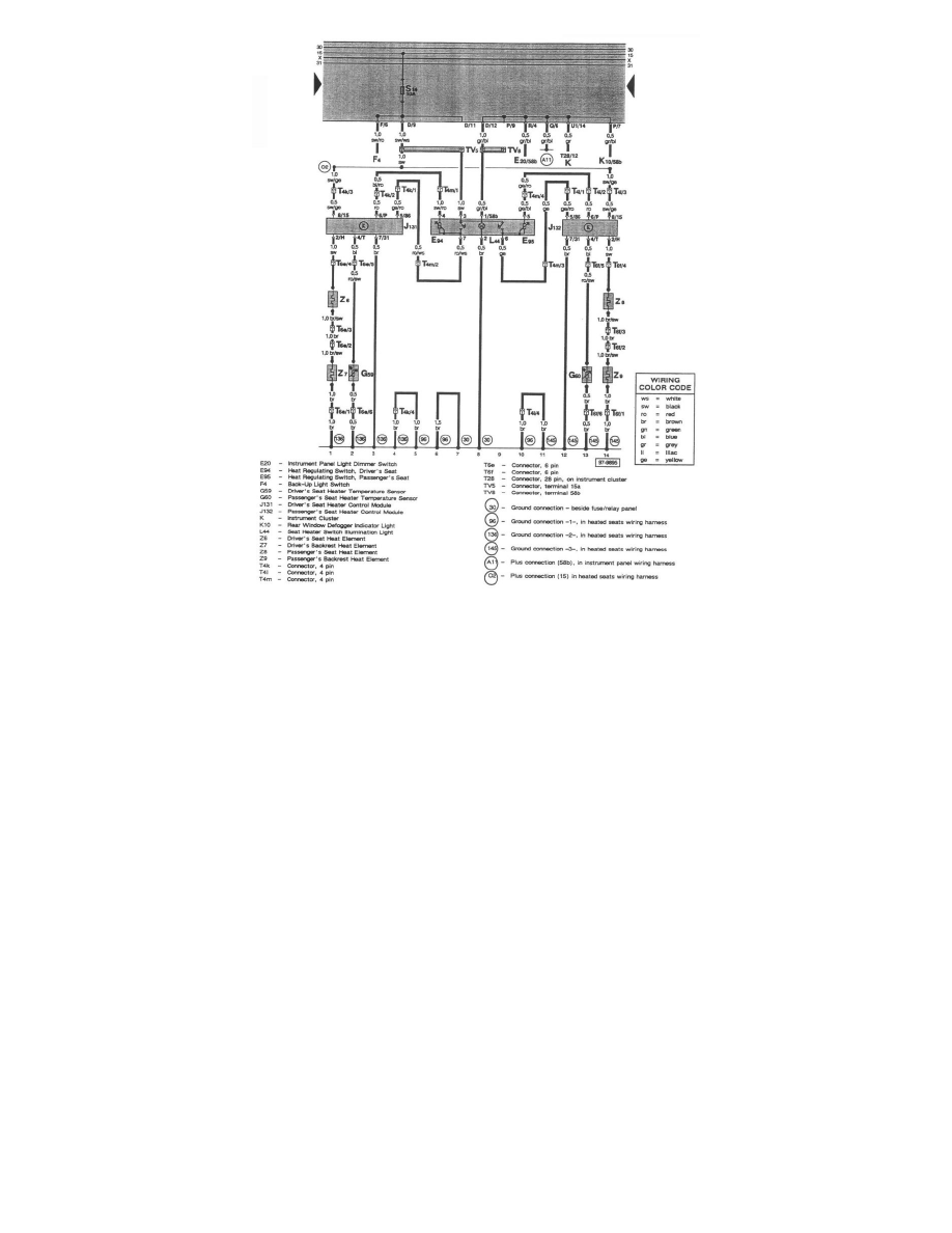
  • Seat Heater Wiring Diagram Assistance Please

  • Audi Workshop Manuals U0026gt A5 U0026gt Power Unit U0026gt 6

  • Audi 1986

  • Porsche 928 Usa Model 1979 Current Flow Diagram

  • Porsche 928 Usa Model 1979 Current Flow Diagram

  • Performance Air Filter For Audi A3 Tt Golf Iv Jetta Iv

  • 2002 Audi A4 Fuse Box

  • Wiring Diagrams Component Lookup

  • Audi Workshop Manuals U0026gt A3 Mk2 U0026gt Power Unit U0026gt 5

  • Seat Leon 1p 2 0 Tdi 170pk Wisselend Toerental Tijdens

  • Performance Air Filter For Audi A3 Tt Golf Iv Jetta Iv

  • Should My S3 Amk Have A Undertray

  • Audi Workshop Manuals U0026gt A3 Mk1 U0026gt Power Unit U0026gt 4

  • Audi Workshop Manuals U0026gt A3 Mk2 U0026gt Heating Ventilation Air

  • Porsche 928 Usa Model 1979 Current Flow Diagram

  • Audi Workshop Manuals U0026gt A4 Cabriolet Mk2 U0026gt Heating

  • Audi Workshop Manuals U0026gt A3 Mk1 U0026gt Power Unit U0026gt 4

  • Audi Tt 2007 Year Manual

  • Audi Workshop Manuals U0026gt A3 Quattro V6

  • Audi A3 1996 8l 1 G Atw Engine Ignition System Service

  • Thesamba Com Vw Thing Wiring Diagrams

  • Wiring Diagrams Component Lookup

  • Audi Workshop Manuals U0026gt A3 Mk1 U0026gt Power Unit U0026gt 4

  • Audi Workshop Manuals U0026gt 80 Quattro L5

  • Audi Workshop Manuals U0026gt 90s Cs V6

  • Tail Light Cluster Wiring Diagram

  • Toyota Wiring Diagram Symbols

  • Audi Workshop Manuals U0026gt A3 Mk1 U0026gt Power Unit U0026gt 4

Copyright © 2020 - CETNIEWO2017.VILOGDANSK.EU


1937 Comments